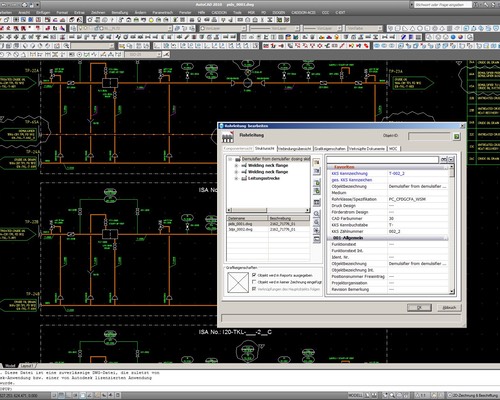
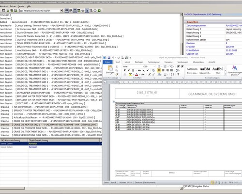
CADISON® ist eine voll integrierte multidisziplinäre ingenieurtechnische Softwarelösung, die den gesamten Engineering Workflow in einem System vereint. Dies gilt sowohl für die technischen als auch für die grafischen Daten (P&ID, Stromlaufplan, 3D Modell). Die Projektmitarbeiter greifen immer auf die aktuellen Daten des Projektes, in allen notwendigen Projektansichten und allen Disziplinen zu.









